八軒7条東3丁目 新築住宅 2号棟

♪令和8年4月完成予定!リビング広々、陽当り良好の新築住宅2棟!!仲介手数料無料です!

物件のアピールポイント

  ☆令和8年4月上旬完成予定、現在建築中!

☆八軒の閑静な住宅地!

☆LDK広々15.3帖!
☆耐震+制震の家!(建築基準法の1.5倍のさらに超える耐震性能)♪♪地震による建物の揺れを吸収!♪♪繰り返す地震に安定した効果を発揮!など、震度6強の地震を最大67%低減!約200回受けても制震性能が衰えません!

☆「省エネ・エコ」「快適性」に優れた住まい!

 

☆給湯・暖房は経済的な都市ガスエコジョーズ!
☆暮らしをやさしく支えるエコジョーズの給湯・暖房設備!環境にやさしいエコロジー、家計にやさしいエコノミーを追求!パネルヒーター・温水セントラルヒーティングと「プルモパネル」が創り出す快適のクオリティー!

☆安全・快適・省エネ・高耐久設計!
(雪が落ちにくいストッパールーフ仕様!セルフクリーニング機能でメンテナンス楽々の外壁材!断熱材と高断熱複層ガラスの組み合わせで高い断熱性を実現のLowーEガラス!耐熱・高強度で、地震・台風・火災からご家族とお住まいを守るダイライト!断熱性に優れ、より丈夫な「ベタ基礎」工法を採用した土間コンクリート)
☆ルーフバルコニーあり、快適環境!☆豊かな緑に彩られた閑静な住宅地。

【仲介手数料無料‼︎】初期費用をグンと抑えられます!

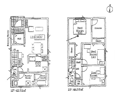
2号棟間取り(間取) 現在建築中(外観) 広々リビング (同タイプ)(リビング) 2面の窓から1日中明るい日差し。1号棟(リビング) 複層ガラスで全室あたたか、安心。(リビング) 対面キッチンでご家族との対話が楽しめます。(キッチン) 室内パネルヒーター(リビング) 浄水栓付き(キッチン) 窓付き、光の入る明るい玄関内部 (玄関) セントラルパネルヒーターが全室にあり、場所を取らず暖かです。(洋室)
価格
3480万円
新築戸建
間取
3LDK

所在地 北海道札幌市西区八軒7条東3丁目
八軒7条東3丁目 新築住宅
交通 JR札沼線八軒駅 徒歩4分
築年月 2026/04 新築/中古 新築
面積 82.61㎡(24.98坪) 計測方式
バルコニー 4.86㎡(1.47坪) 向き 南西
建物階数 2階建  部屋階数
部屋/区画番号 2号棟 総戸/区画数
建物構造 木造
間取内容 1階LDK15.3畳1室  1階洋室5.2畳1室  2階洋室4.5畳1室  2階洋室7.2畳1室      
駐車場 敷地内駐車2台可 取引態様 専任
引渡/入居時期 期日指定 2026/4 現況 建設中
地目 宅地 用途地域 第二種中高層住居専用
都市計画 市街化区域 地勢 平坦
その他・法令上の制限 景観計画区域、18m高度地区他
土地面積 156.72㎡(47.4坪) 土地面積計測方式 公簿
建ぺい率 60% 容積率 200%
土地権利 所有権 接道状況 一方
接道方向1 接道間口1 3.3m
接道種別1 公道 接道幅員1 8m
位置指定道路1
周辺環境 琴似中央小学校 徒歩6分  八軒東中学校 徒歩13分
その他周辺環境 ダイイチ 徒歩8分、フレッティ琴似 徒歩10分、セブンイレブン 徒歩4分、ローソン 徒歩6分、北海道脳神経外科 徒歩6分、八軒東郵便局 徒歩10分
設備・条件 三口コンロ システムキッチン カウンターキッチン 給湯 洗髪洗面化粧台 浴室乾燥機 浴室1.6x2.0m以上 温水洗浄便座 暖房 室内洗濯機置き場 TVドアホン 都市ガス 公営水道 排水下水 駐車場有 バルコニー フローリング 耐震構造 制震構造 住宅性能評価書 ルーフバルコニー面積4.86㎡  
物件番号 八軒7条東3丁目 新築住宅 2号棟
自社物 状態 売出中
Loading...
バルコニーに出入りできる2階洋室 (洋室)2階洋室(洋室)2階洋室。白を基調とした明るい室内。(洋室)全居室に収納付き。(収納)ご家族の大容量の季節もの収納にも助かります。(収納)各室収納あり。(収納)(バルコニー(テラス))(設備)(洋室)お手入れしやすい角形ホールタイプ (洗面所)一日の疲れを癒す浴室(浴室)(収納)エコジョーズボイラー(設備)(洗面所)天井には物干しスペースあり(浴室)1階、2階にあり(トイレ)1号棟間取り(間取)
※物件掲載内容と現況に相違がある場合は現況を優先と致します。


お問合せはこちら

お問合せ・ご相談はお電話またはメールにて受け付けております。まずはお気軽にご連絡ください。

お電話でのお問合せはこちら


011-622-6377

受付時間:午前9時~午後6時(毎週水曜日を除く)