稲穂2条7丁目 新築住宅 2号棟
♪完成済み、ご案内します!子育てグリーン住宅支援事業対象!仲介手数料無料!
物件のアピールポイント
☆令和7年9月完成!
☆緑豊かな稲穂2条の閑静な住宅地!
☆子育てグリーン住宅支援事業対象!(補助金40万円)
☆住宅ローン減税あり!オプション3点サービス相談可!
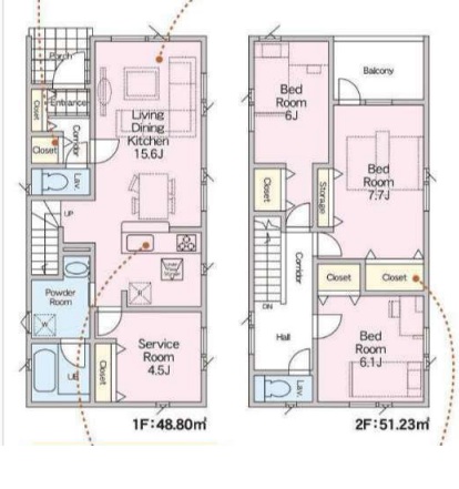
☆LDK広々15.6帖!
☆耐震+制震の家!(建築基準法の1.5倍のさらに超える耐震性能)♪♪地震による建物の揺れを吸収!♪♪繰り返す地震に安定した効果を発揮!など、震度6強の地震を最大67%低減!約200回受けても制震性能が衰えません!
☆「省エネ・エコ」「快適性」に優れた住まい!
☆給湯・暖房は経済的なエコジョーズ!
☆暮らしをやさしく支えるエコジョーズの給湯・暖房設備!環境にやさしいエコロジー、家計にやさしいエコノミーを追求!パネルヒーター・温水セントラルヒーティングと「プルモパネル」が創り出す快適のクオリティー!
☆安全・快適・省エネ・高耐久設計!
(雪が落ちにくいストッパールーフ仕様!セルフクリーニング機能でメンテナンス楽々の外壁材!断熱材と高断熱複層ガラスの組み合わせで高い断熱性を実現のLowーEガラス!耐熱・高強度で、地震・台風・火災からご家族とお住まいを守るダイライト!断熱性に優れ、より丈夫な「ベタ基礎」工法を採用した土間コンクリート)
☆ルーフバルコニーあり、快適環境!☆豊かな緑に彩られた閑静な住宅地。
【仲介手数料無料‼︎】初期費用をグンと抑えられます!
| 所在地 |
北海道札幌市手稲区稲穂2条7丁目 稲穂2条7丁目 新築住宅 |
| 交通 |
JR函館本線星置駅 徒歩6分 バス(新琴似8条15丁目 乗9分 停歩4分) |
| 築年月 |
2025/09 |
新築/中古 |
新築 |
| 面積 |
100.03㎡(30.25坪) |
計測方式 |
|
| バルコニー |
4.86㎡(1.47坪) |
向き |
北西 |
| 建物階数 |
2階建
|
部屋階数 |
階 |
| 部屋/区画番号 |
2号棟 |
総戸/区画数 |
|
| 建物構造 |
木造 |
| 間取内容 |
1階LDK15.6畳1室 1階洋室4.5畳1室 2階洋室6畳1室 2階洋室7.7畳1室 2階洋室6.1畳1室
|
| 駐車場 |
敷地内駐車2台可 |
取引態様 |
一般 |
| 引渡/入居時期 |
即時 |
現況 |
完成済 |
| 地目 |
宅地 |
用途地域 |
近隣商業 |
| 都市計画 |
市街化区域 |
地勢 |
平坦 |
| その他・法令上の制限 |
景観計画区域、33m高度地区他 |
| 土地面積 |
105.11㎡(31.79坪) |
土地面積計測方式 |
公簿 |
| 建ぺい率 |
90% |
容積率 |
200% |
| 土地権利 |
所有権 |
接道状況 |
角地 |
| 接道方向1 |
北東 |
接道間口1 |
9.3m |
| 接道種別1 |
公道 |
接道幅員1 |
8m |
| 位置指定道路1 |
|
| 接道方向2 |
南東 |
接道間口2 |
6.8m |
| 接道種別2 |
公道 |
接道幅員2 |
8m |
| 周辺環境 |
稲西小学校 徒歩18分
稲西中学校 徒歩16分
|
| その他周辺環境 |
ラッキー 徒歩13分、コープさっぽろ 徒歩16分、ローソン 徒歩5分、ファミリーマート 徒歩4分 |
| 設備・条件 |
三口コンロ システムキッチン カウンターキッチン 給湯 洗髪洗面化粧台 浴室乾燥機 浴室1.6x2.0m以上 温水洗浄便座 暖房 室内洗濯機置き場 TVドアホン プロパンガス 公営水道 排水下水 駐車場有 バルコニー フローリング 耐震構造 制震構造 住宅性能評価書 ルーフバルコニー面積4.86㎡ |
| 物件番号 |
稲穂2条7丁目 新築住宅 2号棟 |
| 自社物 |
|
状態 |
売出中 |
※物件掲載内容と現況に相違がある場合は現況を優先と致します。