ニューライフ神宮の森 弐番館 503号室up
☆円山公園隣接の立地。リフォーム用として!
物件のアピールポイント
・ペット可!(規約あり)・最上階5階!
- 価格
- 730万円
- 中古マンション
- 間取
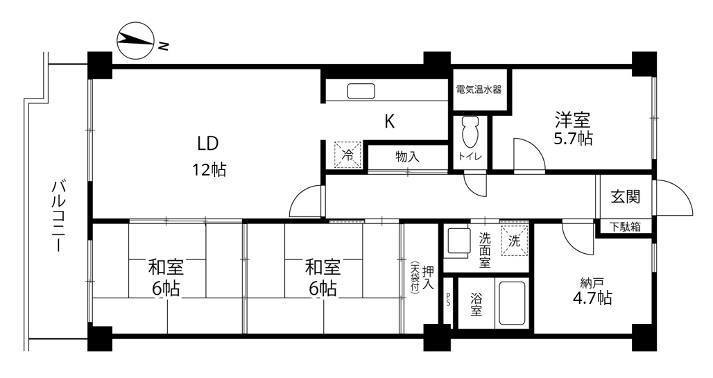
- 3SLDK
- 共益費・管理費
- 7000円
|
|
| 所在地 | 北海道札幌市中央区円山西町1丁目1-2 ニューライフ神宮の森 弐番館 503号室 |
|---|---|
| 交通 | 札幌市営東西線円山公園駅 徒歩20分 札幌市営東西線円山公園駅 バス(動物園前 乗6分 停歩2分) |
| 築年月 | 1982/11 | 新築/中古 | 中古 |
|---|---|---|---|
| 面積 | 81.90㎡(24.77坪) | 計測方式 | 壁芯 |
| バルコニー | 8.73㎡(2.64坪) | 向き | 南東 |
| 建物階数 | 5階建 | 部屋階数 | 5階 |
| 部屋/区画番号 | 506 | 総戸/区画数 | 74 |
| 建物構造 | RC | ||
| 管理形態 | 全部委託 管理人日勤 | ||
| 間取内容 | 5階LDK15.5畳1室 5階和室6.0畳2室 5階洋室5.75畳1室 5階S3畳1室 |
||
| 住宅保険料 | 年 | 修繕積立金 | 15150円 |
| 駐車場 | 空無敷地内空き無し(月額6000~8000円)。 | 取引態様 | 売主 |
| 引渡/入居時期 | 即時 | 現況 | 空き |
| 地目 | 宅地 | 用途地域 | 第一種低層住居専 |
| 都市計画 | 市街化区域 | 地勢 | 平坦 |
| その他・法令上の制限 | 第一種住居 | ||
| 土地権利 | 所有権 | 接道状況 | |
| 周辺環境 | 大倉山小学校 徒歩10分 宮の森中学校 徒歩15分 | ||
| その他周辺環境 | セイコーマート 徒歩9分、円山西町簡易郵便局 徒歩11分、マルヤマクラス 徒歩20分、円山公園 徒歩19分、円山動物園 徒歩9分、宮の森幼稚園 徒歩19分 | ||
| 設備・条件 | システムキッチン 洗髪洗面化粧台 ユニットバス 石油暖房 TVドアホン 都市ガス 公営水道 排水下水 エレベータ バルコニー 事務所使用不可 給湯:電気温水器 | ||
| 物件番号 | ニューライフ神宮の森 弐番館 506号室 | ||
| 自社物 | 状態 | 売出中 | |
Loading...
※物件掲載内容と現況に相違がある場合は現況を優先と致します。
お問合せはこちら
お問合せ・ご相談はお電話またはメールにて受け付けております。まずはお気軽にご連絡ください。
お電話でのお問合せはこちら
011-622-6377
受付時間:午前9時~午後6時(毎週水曜日を除く)


































