☆旧焼肉店テナント!
☆設備譲渡可能(有償)!
☆幹線道路に面した店舗!
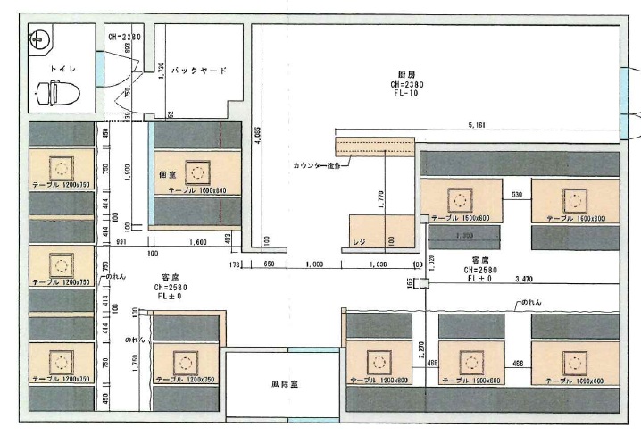
☆全46席!(半個室タイプ、4~6名用)
☆駐車13台可能!
☆看板設置可能!
物件のアピールポイント
|
47.3万円 |
|
|
| 所在地 | 北海道札幌市中央区南15条西18丁目2-24 伏見 飲食店テナント |
|---|---|
| 交通 | 札幌市軌道線(札幌市電)西線16条駅 徒歩10分 |
| 築年月 | 1997/11 | 新築/中古 | 中古 |
|---|---|---|---|
| 面積 | 79.49㎡(24.04坪) | 計測方式 | |
| バルコニー | ㎡(0坪) | 向き | |
| 建物階数 | 1階建 | 部屋階数 | 階 |
| 部屋/区画番号 | 総戸/区画数 | ||
| 建物構造 | 木造 | ||
| 管理形態 | 管理人無 | ||
| 間取内容 | |
||
| 駐車場 | 敷地内13台可能 | 取引態様 | 代理 |
| 引渡/入居時期 | 即時 | 現況 | 空き |
| 地目 | 宅地 | 用途地域 | |
| 都市計画 | 市街化区域 | 地勢 | 平坦 |
| 周辺環境 | 伏見小学校 徒歩9分 伏見中学校 徒歩4分 | ||
| その他周辺環境 | ラルズマート 徒歩5分、セブンイレブン 徒歩3分、ファミリーマート 徒歩5分、サツドラ 徒歩7分、北洋銀行 徒歩8分、南14条郵便局 徒歩5分 | ||
| 設備・条件 | 角地 給湯 暖房 公営水道 排水下水 設備譲渡費用:5,000,000円、退去時清掃費 55,000円。 | ||
| 物件番号 | 伏見 飲食店テナント | ||
お問合せ・ご相談はお電話またはメールにて受け付けております。まずはお気軽にご連絡ください。
お電話でのお問合せはこちら
011-622-6377
受付時間:午前9時~午後6時(毎週水曜日を除く)